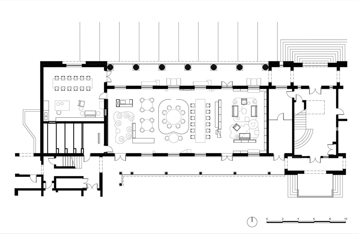
SACRED HEART LIBRARY | 2012

The rethinking and refurbishment of a high school library, into a space of dialogue and of new technology.

Key responsibilities: Architect, Interior Architect.

previous arrowprevious arrow
OFFICE-247-EDUCATIONAL-SACRED-HEART-SLIDE-1
OFFICE-247-EDUCATIONAL-SACRED-SLIDE-2
OFFICE-247-EDUCATIONAL-SACRED-HEART-SLIDE-3
next arrownext arrow